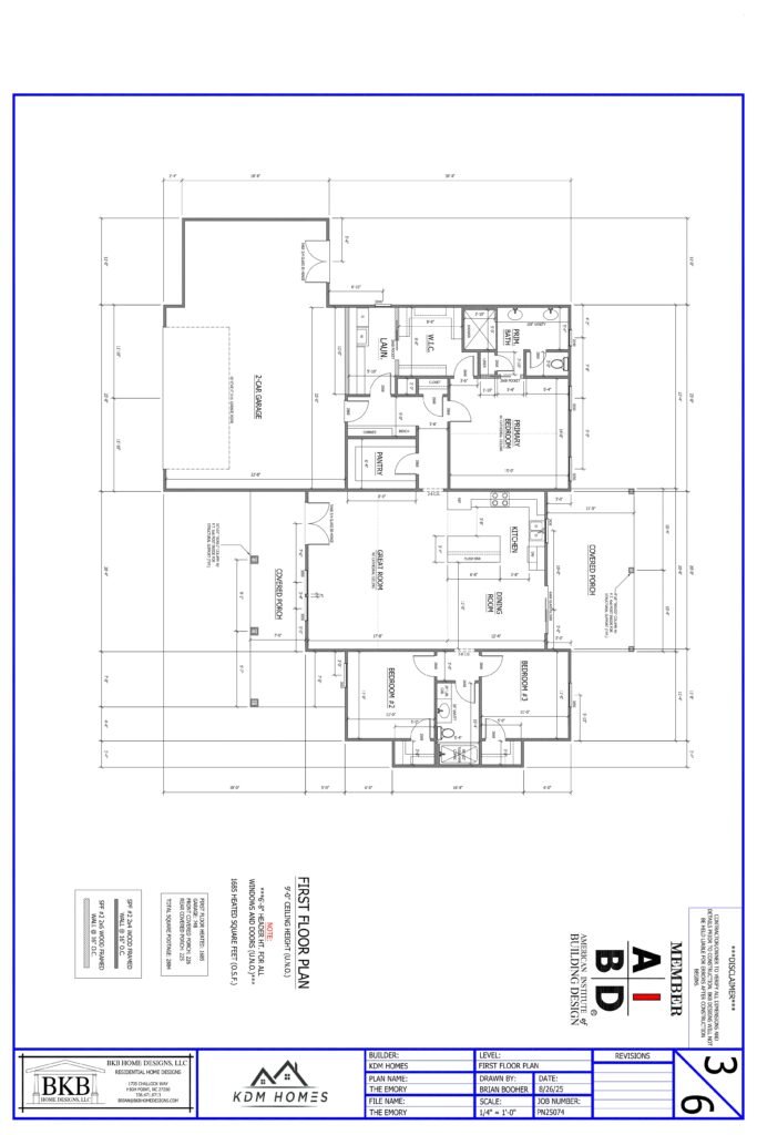
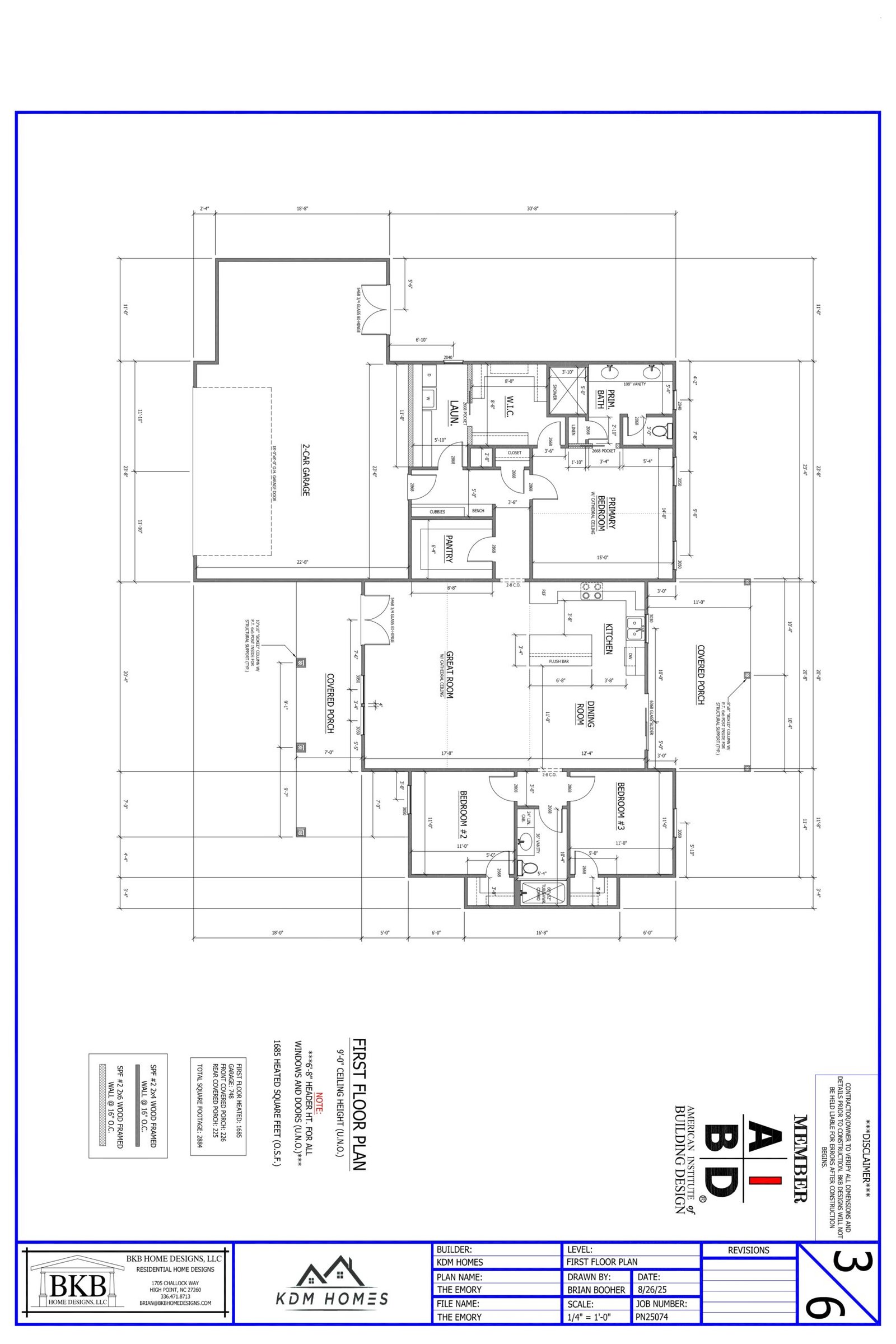
Emory Floor Plan