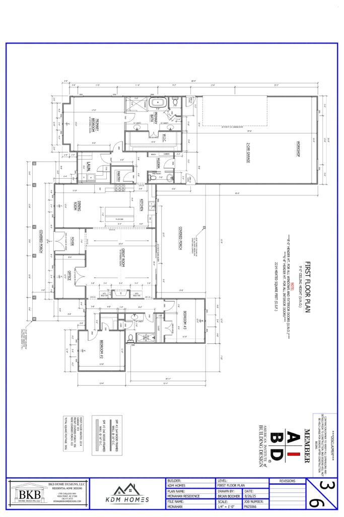
Monahan Floor Plan