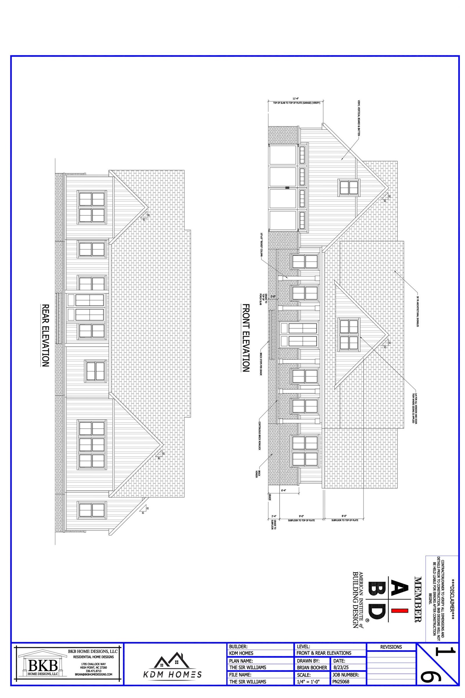
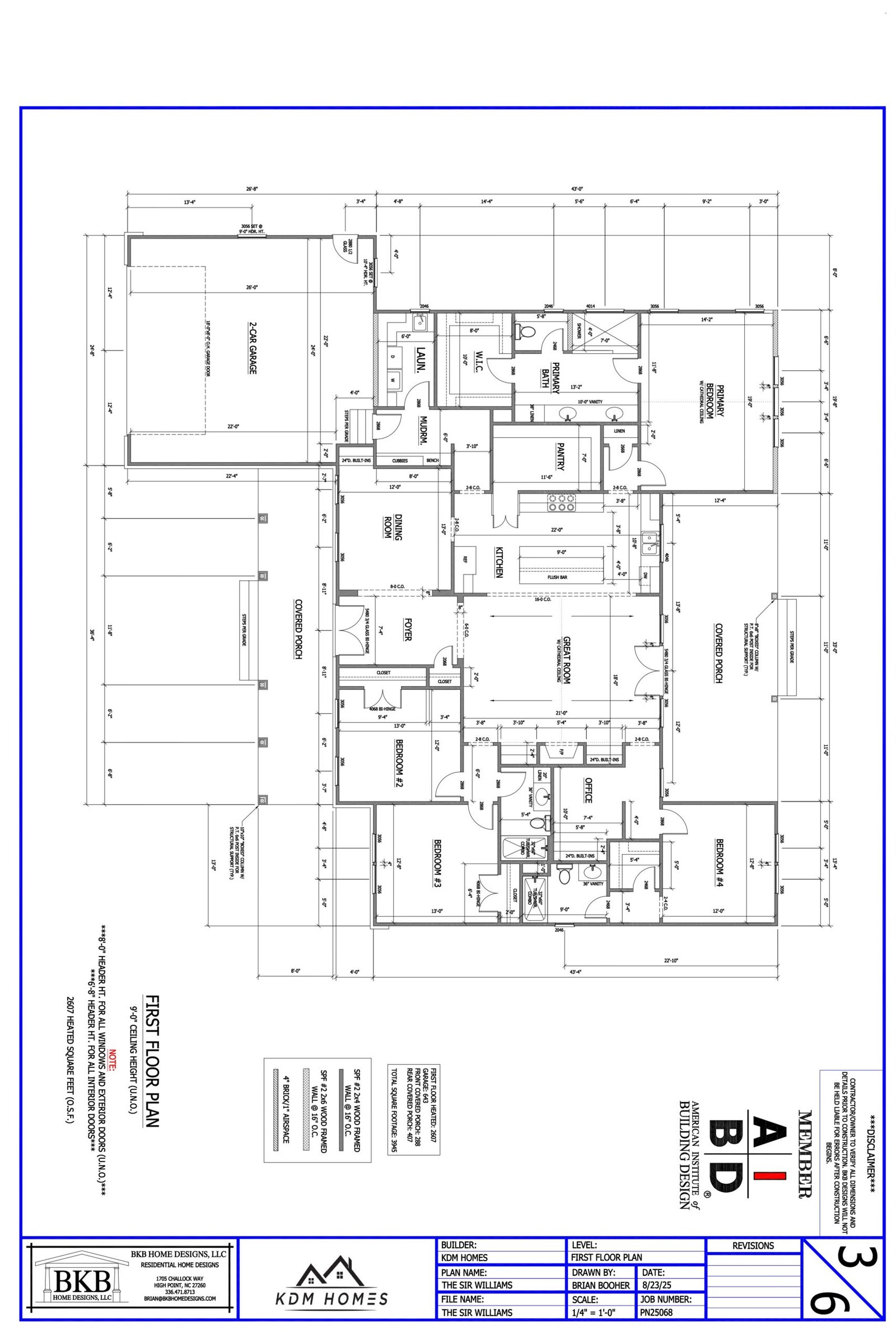
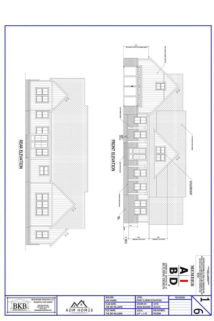
Sir Williams Floor Plan